
Rochester School Board Approves Potential Multi-Million Dollar Project for School Conversion
Rochester, MN (KROC-AM News)- The Rochester Public School Board (RPS) unanimously approved a construction project for one of its buildings that could cost more than $2 million.
Read More: Rochester School Board Approves Attendance Option Redesign
The project is part of RPS’s Attendance Options Redesign Plan, which originally called for the closure of three buildings and other sweeping before it was revised following a $10 million donation from Mayo Clinic.
In January RPS board members approved the new plan which among other items calls for moving Pinewood Elementary into the Longfellow School.

RPS Board Approves up to $2.1 Million Project for School Conversion
RPS would then convert Pinewood Elementary into an early-learning center that would eventually replace the Mighty Oaks facility in the rural southeastern Rochester, which is slated for closure under the approved plan.
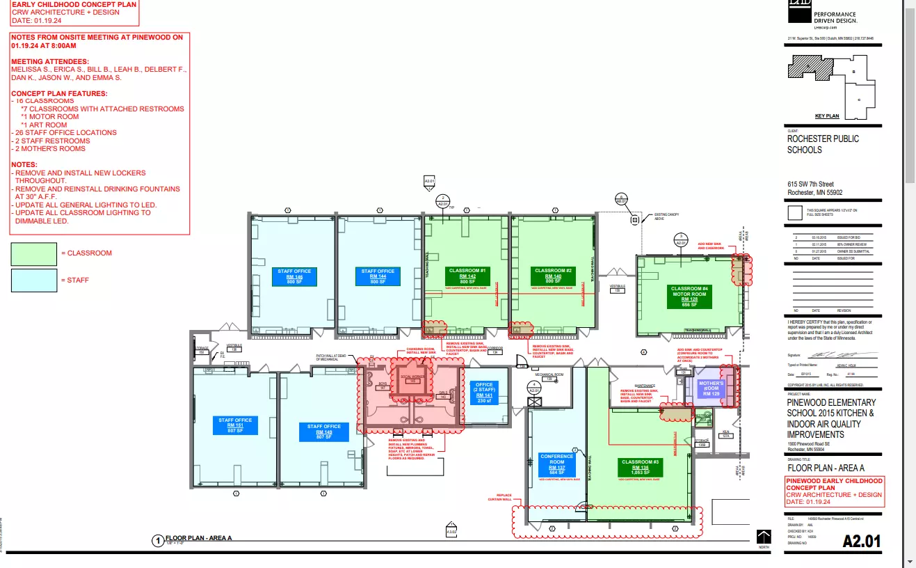
RPS began working with Knutson Construction and CRW Architecture & Design Group in January to determine the cost and scope of a project to convert Pinewood from an elementary school into an early childhood learning facility.
That analysis led to the determination that the project’s budget will range from $1.9 to $2.1 million, according to the agenda item.
The agenda item lists the changes needed to convert the soon-to-be former elementary school to an early childhood facility:
- Add playground and playground fencing.
- Add power and data to rooms 144, 146, 149, and 151 for workstations.
- Create a mother’s room.
- Lower existing drinking fountains.
- New single restroom shared with classrooms 107 and 109.
- New single restroom shared with classrooms 111 and 113.
- Parking expansion.
- Remove and replace sink and base cabinet at 11 classrooms.
- Remove luxury vinyl tile (LVT) and replace with carpet at 11 classrooms.
- Replace fixtures at restrooms to meet new needs.
- Replace lockers with ones salvaged from Mighty Oaks.
- Replace outlets with tamper resistant throughout and GFI in kitchen.
RPS will fund the changes using $1.4 million that has been marked as reserves from the 2018 sale of the district’s former Maintenance Service Building.
$0.5 million will come from RPS’s general fund and $0.2 million from the district’s community education fund, the agenda item says.
The board will also be asked to approve contracts larger than $175,000 and expenses that would bring the project’s total cost over $2.1 million during the construction process.
The agenda item does not list a timeline of construction.
More Minnesota News:
- Rochester Man Who Listed Cocaine for Sale on Snapchat Sentenced
- SE Minnesota Romance Scam Victim Admits to Theft of Millions
- Driver Hospitalized After Crashing into Tree Near Rochester
20 Best Public Schools in Minnesota
Gallery Credit: Carly Ross
More From KROC-AM









